imobiliare .net
Login
Inregistrare
Anunt
Tur 360
Alerte
Favorite
Mesagerie
Favorit
Sesizeaza neregula

1 Mai, Popisteanu, casa S+P+E+M sup. 521mp 10 camere 3 bai teren 238mp

An constructie
2002
Suprafata
417 m2
Suprafata teren
238 m2
Front stradal
13 m
Tip casa
Individuala
Structura rezistenta
Beton/bca/caramida
Nr. dormitoare
10
Stare constructie
Constructie finalizata
Interior
Necesita renovare
Nr. bai
3
ID
315854870

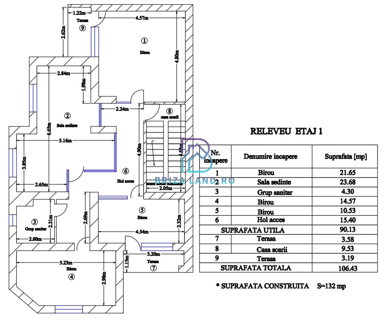
Agentia BrizaLand propune spre vanzare, in zona 1 Mai, Aviator Popisteanu, casa compusa din Demisol+Parter+ Etaj+ Mansarda, constructie 2002, s.construita totala 521mp, s.utila totala 417mp, s.construita la sol 128mp, 10 camere, 3 bai, doua intrari, cu teren 238.6mp cu deschidere 12.8m.

Compartimentare:
Demisol ( s.utila totala 101.8mp ) : garaj doua masini, camera tehnica, 3 spatii de depozitare;
Parter ( s.utila totala 98.9mp ) : hol, 3 camere, bucatarie, baie, terasa;
Etaj ( s.utila totala 106.4mp ) : hol, 4 camere, baie, doua terase;
Mansarda ( s.utila totala 109.8mp ) : hol, 3 camere, baie, doua terase.

Structura de rezistenta :
plansee, stalpi si grinzi de beton armat, zidarie portanta din caramida, recompartimentari pe structura usoara.

Finisaje:
finisata interior 2006 : gresie, faianta, parchet, geamuri termopan, doua centrale termice Ariston cu boiler aditional, doua aparate aer conditionat, scara de beton placata cu gresie, usi de exterior metalice, usi interioare celulare; exterior renovat 2011, izolat polistiren si tencuit decorativ, acoperis tigla metalica; - necesita renovare interior si exterior.

Transport :
terenul este situat la 5 minute de mers pe jos fata de statia stb si la 9 minute fata de statia de metrou 1 Mai, calculat prin google maps.

Situatie juridica:
cadastru si intabulare;
extras de carte funciara liber de sarcini,
imobilul este inchiriat, contractul se poate rezilia.

Puncte de interes:
EXPO Business Park la 4 minute de mers pe jos,
Piata Chibrit la 7 minute de mers pe jos sau doua minute cu masina,
Piata Domenii la 3 minute cu masina,
market Mega Image la 7 minute de mers pe jos;
Romexpo, piata Presei si Parc Herastrau la 8 minute cu masina;
Piata Victoriei la 10 minute cu masina;
Gradinita Numarul 43 la 4 minute cu masina;
Gradinita Numarul 222 la 7 minute cu masina;
parcul Ciresarii si Clubul copiilor sector 1 Ciresarii la 10 minute de mers pe jos, respectiv 3 minute cu masina,
Școala Gimnazială Sf. Nicolae la 10 minute de mers pe jos, respectiv 3 minute cu masina,
Colegiul Național Aurel Vlaicu la 10 minute de mers pe jos, respectiv 3 minute cu masina,
Liceul Teoretic "Nicolae Iorga" la 5 minute cu masina sau 9 minute cu mijloacele stb,
in apropiere mai puteti gasi cabinete stomatologice, veterinar, diverse banci, service gsm, service auto, benzinarii, frizerii si altele.

Alte detalii:
bransata la toate utilitatile : apa, gaze, canalizare si curent,
curte pavata unde se pot parca doua autoturisme,
pretabil rezidential, birouri

Pret : 465.000 euro



Pozitia pe harta 1 Mai, Popisteanu, casa S+P+E+M sup. 521mp 10 camere 3 bai teren 238mp