imobiliare .net
Login
Inregistrare
Anunt
Tur 360
Alerte
Favorite
Mesagerie
Favorit
Sesizeaza neregula

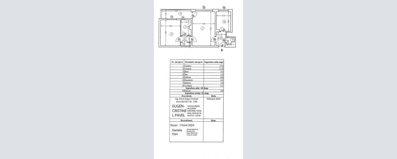
Apartament 2 Camere Iancului

An constructie
1977
Suprafata
46 m2
Confort
I
Tip apartament
semidecomandat
Etaj
5 / 10
Tip imobil
4
Nr. dormitoare
1
Stare constructie
Constructie finalizata
Interior
Proaspat renovat
Nr. bai
1
CE clasa
A
ID
315858921

Apartament de 2 camere in curs de renovare, situat la etajul 5 intr-un bloc bine întreținut, amplasat pe Șos. Iancului nr. 8, Sector 2. Una dintre cele mai bine conectate și funcționale zone rezidențiale ale Capitalei.
Suprafață bine compartimentată: living spațios, dormitor, bucătărie închisă, baie cu geam de aerisire
Spații de depozitare bine gândite.
Lucrarile de renovare se apropie de final.
Usi noi, usa metalica la intrare.
Instalațiile electrice și sanitare au fost înlocuite integral.
Pozele sunt cu titlu informativ pentru a va face o idee despre stilul de renovare folosit. Nu au nici o legatura cu apartamentul din anunt.
Se accepta credit.


  • Usa metalica
  • Termopan
  • Bucatarie inchisa
  • Geam baie
  • Apometre


Pozitia pe harta Apartament 2 Camere Iancului