imobiliare .net
Login
Inregistrare
Anunt
Tur 360
Alerte
Favorite
Mesagerie
Favorit
Sesizeaza neregula
An constructie
1859
Suprafata
55 m2
ID
2284166

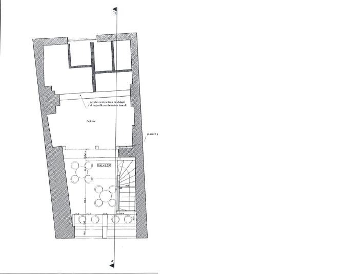
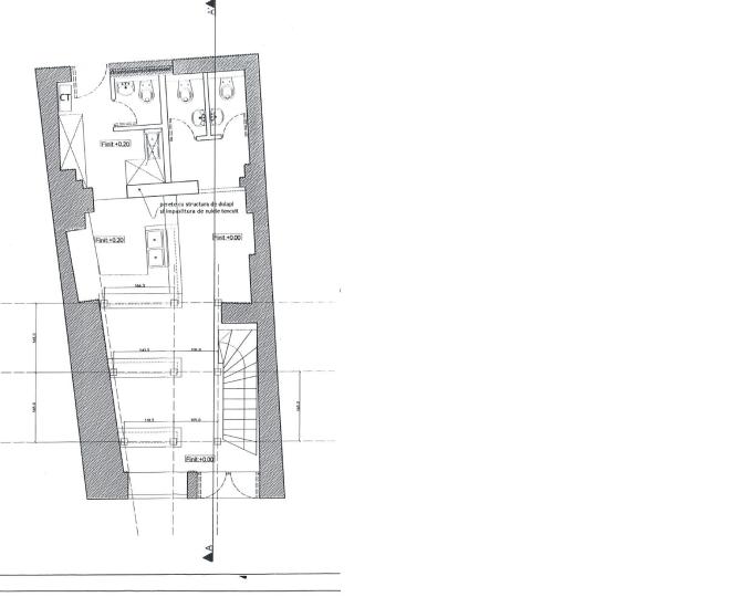
Imobiliar Expert Grup va propune spre inchiriere spatiu comercial in suprafata de 55 mp in zona Centru Istoric. Spatiul dispune de vitrina de 4 ml , grup sanitar, apa, canalizariza si curent. . Spatiul este compus din Parter si Supanta dispune de vizibilitate buna si trafic intens



Pozitia pe harta