imobiliare .net
Login
Inregistrare
Anunt
Tur 360
Alerte
Favorite
Mesagerie
Favorit
Sesizeaza neregula
An constructie
1980
Suprafata
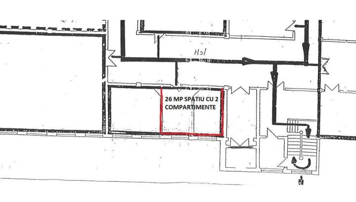
26 m2
ID
2865025

Imobiliar Expert Grup va propune spre închiriere un spațiu de birouri situat în zona Tineretului, cu acces rapid la metrou, ideal pentru activități de birou, consultanță sau sediu de firmă.Spațiul are o suprafață de 26 mp, este compartimentat în 2 încăperi.Detalii financiare:Chirie: 340 € + TVA / lunăMentenanță: 3,3 € / mp, care include:pază complexcolectare deșeuri menajereenergie termicăapăîntreținere spații comunecentralăechipă de mentenanță (instalator + electrician)monitorizare videoCurentul electric se facturează conform contorului, raportat la suprafața închiriatăAvantaje:zonă foarte bine conectatăacces facil la mijloace de transport în comuncosturi predictibiledisponibilitate imediatăSpațiul este potrivit pentru firme care caută o locație practică, bine poziționată și gata de utilizare.



Pozitia pe harta