imobiliare .net
Login
Inregistrare
Anunt
Tur 360
Alerte
Favorite
Mesagerie
Favorit
Sesizeaza neregula

? DUPLEX Vila 8 camere, S+P+GRĂDINĂ PRIVATĂ, 145mp - AFACERE PERFECTA

Suprafata
145 m2
Suprafata teren
500 m2
Front stradal
10 m
Tip casa
Duplex
Structura rezistenta
Beton/bca/caramida
Nr. dormitoare
8
Stare constructie
Constructie finalizata
Interior
Proaspat renovat
Nr. bai
2
ID
315841099

🏠 DUPLEX Vila 8 camere, S+P + GRĂDINĂ PRIVATĂ, 145mp - AFACERE PERFECTĂ! 🌳
Bucureștii Noi (Str. Fabrica de Cărămida) | Zonă liniștită de case | Acces privat la întreaga grădină - 400 MP.

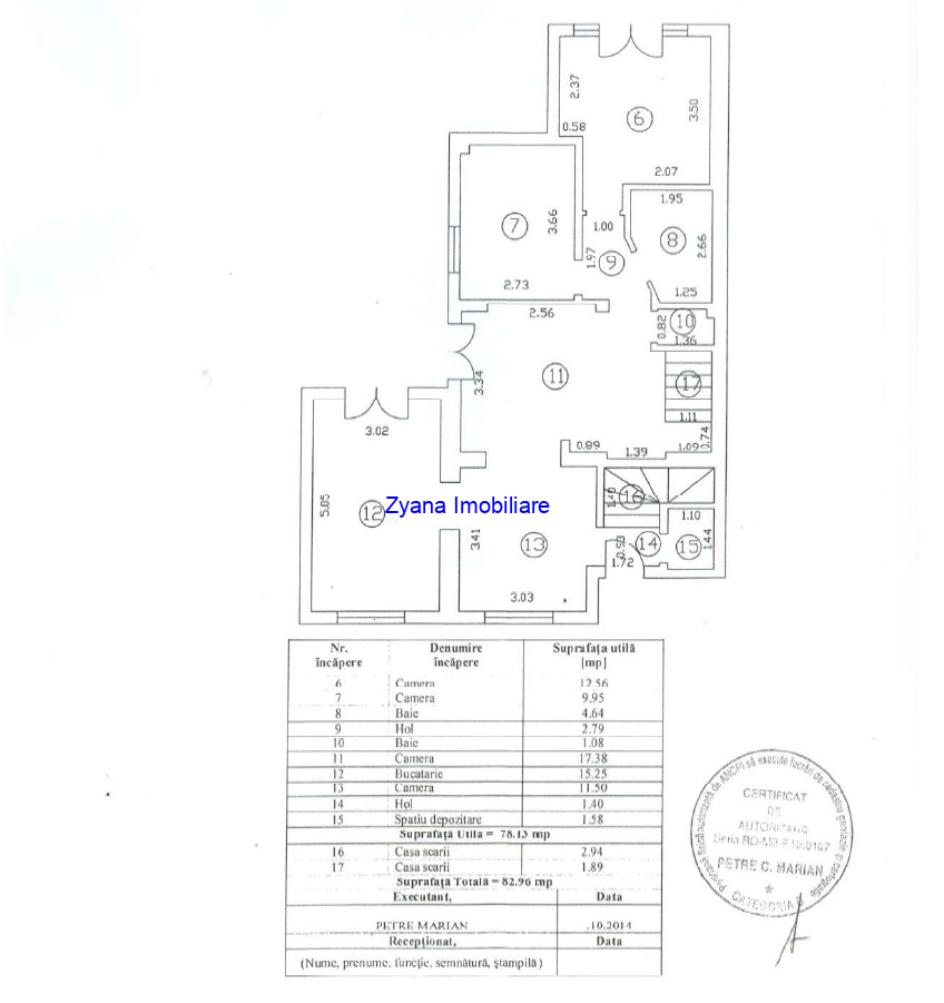
Suprafețe ample & flexibile (S+P+1+M):

Subsol: 62 mp – 4 camere spațioase (22 mp, 16 mp, 10 mp, 9 mp) cu geamuri.

Parter: 83 mp – 4 camere semidecomandate (10 mp, 11 mp, 13 mp, 17 mp), 2 bai, bucătărie; scară interioară spre subsol; Nemobilat ( doar bucataria); iesire in curte

Zonă ideală: Aproape de Lacul Mogosoaia | STB 112, 95 | Metrou Laminorulu : 10 min. Perfect pentru Locuință + Afacere! Sector 1

Ideal pentru: Birouri, showroom, clinică medicală, sediu partid, studio înregistrări, saloane beauty/cosmetice, cabinete (avocat, notar), cursuri (dans, pictură, artă, muzică), agenții imobiliare/turism, centru medical, studio pilates/dans, organizare evenimente, sală fitness, magazin online sau activități educaționale/didactice; Locuinta

Preț: 1.100 €/lună

Vă invităm la vizionare: spațiile sunt perfect delimitate, oferind maxim de confort și flexibilitate!
PS: Sună ACUM și închiriază pe loc!

Maria | 0725.388.245 | zyana.imobiliare@yahoo.ro